Bạn đang tìm kiếm bản vẽ thiết kế nội thất biệt thự khu Vinhomes The Harmony? vậy việc bạn cần làm là hãy đọc hết bài viết này nhé, bài viết này tôi sẽ tổng hợp lại mặt bằng căn hộ khu biệt thự Vinhomes The Harmony để bạn tham khảo. Ngoài ra bạn có thể xem các mẫu thiết kế biệt thự đẹp của ATZ
Nội Dung Bài Viết
- 1 Mặt bằng căn hộ Vinhomes The Harmony là gì?
- 2 Bản vẽ thiết kế biệt thự song lập Vinhomes The Harmony (tiểu khu phong lan, tiểu khu hướng dương, tiểu khu nguyệt quế, tiểu khu tulip)
- 2.1 Bản vẽ thiết kế biệt thự song lập Vinhomes The Harmony tiểu khu phong lan
- 2.2 Bản vẽ thiết kế biệt thự song lập Vinhomes The Harmony tiểu khu hướng dương
- 2.3 Bản vẽ thiết kế biệt thự song lập Vinhomes The Harmony tiểu khu nguyệt quế
- 2.4 Bản vẽ thiết kế biệt thự song lập Vinhomes The Harmony tiểu khu Tulip
- 3 Bản vẽ thiết kế biệt thự nhà vườn Vinhomes The Harmony tiểu khu Phong Lan
- 4 Bản vẽ thiết kế biệt thự tứ lập Vinhomes The Harmony
- 5 Bản vẽ thiết kế biệt thự liền kề Vinhomes The Harmony
Mặt bằng căn hộ Vinhomes The Harmony là gì?
Bản vẽ mặt bằng căn hộ Vinhomes là hình chiếu của một căn hộ chung cư được phản chiếu vuông góc lên một mặt phẳng nhất định. Qua bản vẽ này, chủ đầu tư có thể biết được kích thước tổng thể căn hộ, kích thước từng phòng. Ngoài ra, bạn sẽ nắm được những thông tin như vị trí, kích thước, cách bố trí trong căn phòng. Bài viết này ATZ sẽ chia sẻ với quý độc giả một số bản vẽ thiết kế biệt thự Vinhomes The Harmony để bạn tham khảo.
Bản vẽ thiết kế biệt thự đơn lập Vinhomes The Harmony (tiểu khu phong lan, tiểu khu hướng dương, tiểu khu nguyệt quế, Tiểu khu Tulip)
Biệt thự đơn lập là công trình nhà biệt thự có kiến trúc 1 chỉnh thể riêng biệt. Ngôi biệt thự gồm 4 mặt thoáng trái, phải, trước sau với vị trí nằm giữa trung tâm lô đất, đi kèm là sân vườn rộng rãi và tường rào bao quanh. Dưới đây là những mẫu bản vẽ thiết kế biệt thự đơn lập ở các tiểu khu Vinhomes được các chủ đầu tư đánh giá cao.
Bản vẽ thiết kế biệt thự đơn lập Vinhomes The Harmony tiểu khu phong lan
Bản vẽ thiết kế biệt thự đơn lập tiểu khu phong lan mẫu 1




Bản vẽ thiết kế biệt thự đơn lập tiểu khu phong lan mẫu 2

Bản vẽ thiết kế biệt thự đơn lập tiểu Vinhomes The Harmony khu hướng dương
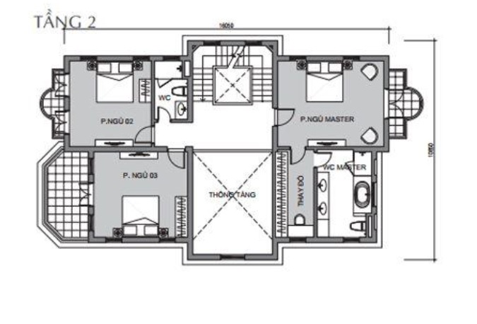
Tổng diện tích đất là 322 – 494,25m2
Tổng diện tích sàn xây dựng là 494,25m2
Diện tích sàn tầng 1 là 150,95m2
Diện tích sàn tầng 2 là 156,4m2
Diện tích sàn tầng 3 là 147,85m2
Diện tích sàn tầng áp mái là 39,05m2

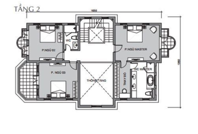
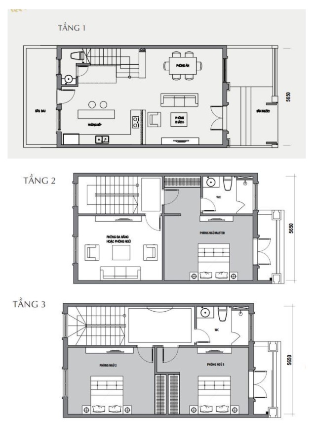
Bản vẽ thiết kế biệt thự đơn lập tiểu khu hướng dương tầng 1

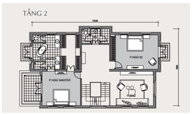
Bản vẽ thiết kế biệt thự đơn lập tiểu khu hướng dương tầng 2

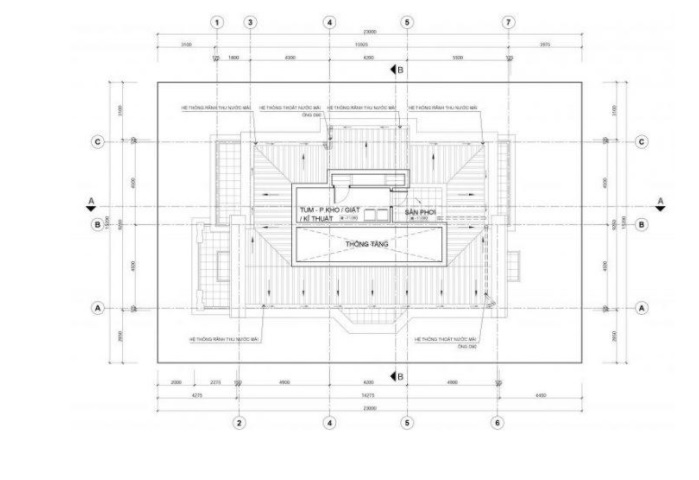
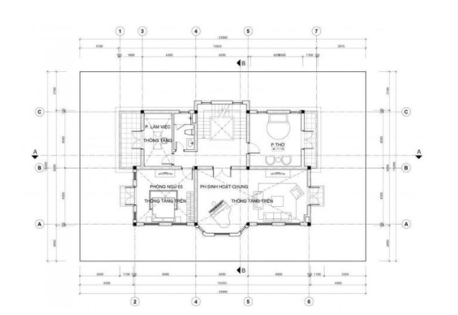
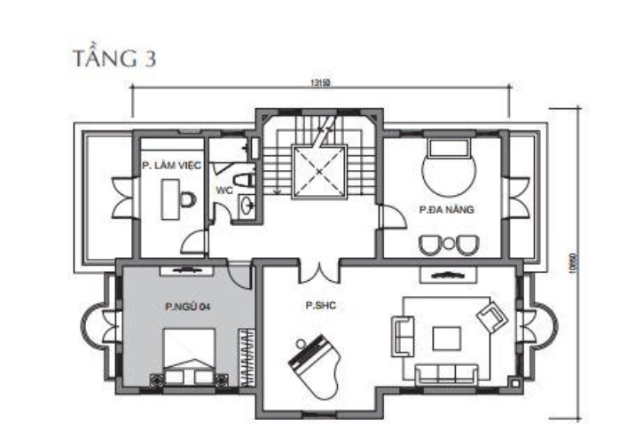
Bản vẽ thiết kế biệt thự đơn lập tiểu khu hướng dương tầng 3

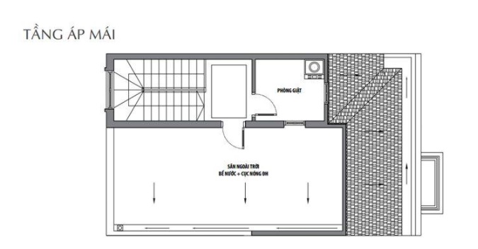
Bản vẽ thiết kế biệt thự đơn lập tiểu khu hướng dương tầng áp mái
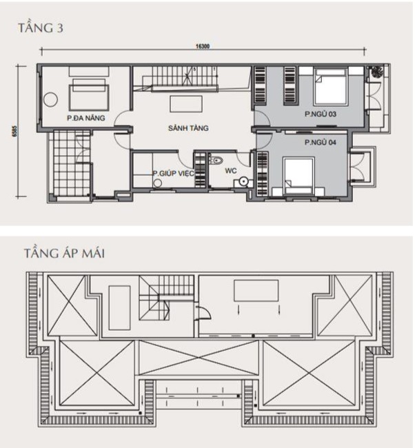
Bản vẽ thiết kế biệt thự đơn lập tiểu khu nguyệt quế
Bản vẽ thiết kế biệt thự đơn lập tiểu khu nguyệt quế mẫu 1
Diện tích đất trung bình là 300 – 368m2
Tổng diện tích sàn xây dựng là 350 – 368m2
Mặt tiền là 14 – 15m


Bản vẽ thiết kế biệt thự đơn lập tiểu khu nguyệt quế mẫu 2
Bản vẽ thiết kế biệt thự đơn lập Vinhomes The Harmony Tiểu khu Tulip


Xem thêm >>> Thiết kế biệt thự đơn lập Vinhomes Harmony
Bản vẽ thiết kế biệt thự song lập Vinhomes The Harmony (tiểu khu phong lan, tiểu khu hướng dương, tiểu khu nguyệt quế, tiểu khu tulip)

Biệt thự song lập Vinhomes The Harmony là loại hình nhà biệt thự có kiến trúc tạo bởi 2 căn biệt thự nối liền thành một tổng thể. Ngôi biệt thự sở hữu 3 mặt thoáng và có sự đối xứng về cách thiết kế kiến trúc, màu sắc và trang trí. Diện tích biệt thự rộng với sân vườn và lối đi thông thoáng, thoải mái.
Xem thêm >>> Mẫu thiết kế biệt thự song lập Vinhomes Harmony
Ở mỗi tiểu khu trong dự án Vinhomes The Harmony sẽ có cùng hạng mục biệt thự song lập. Tuy nhiên cách thiết kế mặt bằng dự án ở mỗi nơi mỗi khác, chúng mang những màu sắc và vẻ đẹp riêng. Một số bản vẽ thiết kế biệt thự song lập Vinhomes The Harmony được kiến trúc sư đầu ngành đánh giá cao về chuyên môn có thể kể đến như sau:
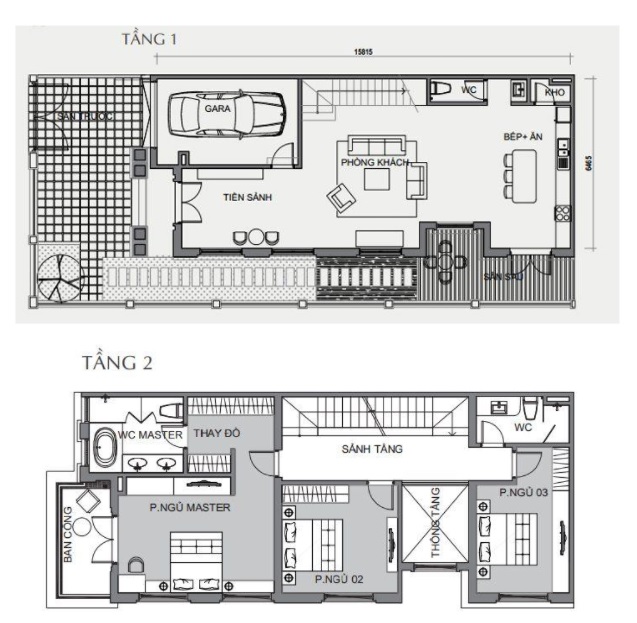
Bản vẽ thiết kế biệt thự song lập Vinhomes The Harmony tiểu khu phong lan




Bản vẽ thiết kế biệt thự song lập Vinhomes The Harmony tiểu khu hướng dương
Tổng diện tích đất là 207 – 213 – 400,4m2
Tổng diện tích sàn xây dựng là 365,03m2
Diện tích sàn tầng 1 là 119,23m2
Diện tích sàn tầng 2 là 113,08m2
Diện tích sàn tầng 3 là 114,84m2
Diện tích sàn tầng áp mái là 17,88m2


Bản vẽ thiết kế biệt thự song lập Vinhomes The Harmony tiểu khu nguyệt quế

Bản vẽ thiết kế biệt thự song lập Vinhomes The Harmony tiểu khu Tulip




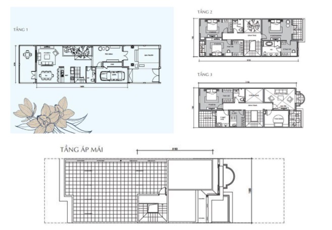
Bản vẽ thiết kế biệt thự nhà vườn Vinhomes The Harmony tiểu khu Phong Lan
Tổng diện tích đất là 168 – 170,6m2
Tổng diện tích sàn xây dựng là 375,67m2
Diện tích sàn tầng 1 là 123,85m2
Diện tích sàn tầng 2 là 122,52m2
Diện tích sàn tầng 3 là 118,8m2

Bản vẽ thiết kế biệt thự tứ lập Vinhomes The Harmony
Diện tích đất là 180 – 290m2.
Tổng diện tích sàn xây dựng là 339,2m2.
Diện tích sàn tầng 1 là 112,2m2
Diện tích sàn tầng 2 là 107,9m2.
Diện tích sàn tầng 3 là 98,7m2.
Diện tích sàn tầng áp mái là 20,m2.


Bản vẽ thiết kế biệt thự liền kề Vinhomes The Harmony
Diện tích đất là 90 – 91,7m2.
Tổng diện tích sàn xây dựng là 210,48m2.
Diện tích sàn tầng 1 là 62,93m2
Diện tích sàn tầng 2 là 64,75m2.
Diện tích sàn tầng 3 là 64,8m2.
Diện tích sàn tầng áp mái là 18m2.


Bản vẽ thiết kế mặt bằng là yếu tố không thể thiếu khi thi công công trình. Một bản vẽ chuẩn xác sẽ giúp giai đoạn thi công thuận lợi và nhanh chóng hơn. Với mỗi loại biệt thự đơn lập, song lập, tứ lập, liền kề hay nhà vườn ở mỗi tiểu khu khác nhau sẽ có những cách thiết kế bản vẽ riêng.
ATZ LUXURY hy vọng với những thông tin hữu ích trong bài viết sẽ giúp bạn đọc cũng như các KTS kiến trúc sư có thể giảm bớt thời gian và công sức khi tìm kiếm mặt bằng mặt bằng biệt thự Vinhomes The Harmony. Mọi thắc mắc xin vui lòng liên hệ với chúng tôi theo số Hotline 0915.178.091 để được giải đáp mọi khúc mắc.
Tìm hiểu thêm
Biên tập: Nguyễn Thu ( thietkenoithatatz.com)
