Kiến tạo một không gian văn phòng mới là một dự án phức tạp, tiềm ẩn nhiều rủi ro như chi phí phát sinh ngoài tầm kiểm soát, tiến độ kéo dài, và thành phẩm cuối cùng không giống với bản vẽ thiết kế. Những vấn đề này không chỉ gây lãng phí nguồn lực mà còn ảnh hưởng trực tiếp đến hoạt động kinh doanh.
Chìa khóa để biến ý tưởng về một không gian làm việc lý tưởng thành hiện thực nằm ở một quy trình thiết kế văn phòng chuyên nghiệp và bài bản. Một quy trình được cấu trúc rõ ràng sẽ là kim chỉ nam, giúp doanh nghiệp kiểm soát mọi khía cạnh của dự án. Với kinh nghiệm triển khai nhiều dự án văn phòng, ATZ LUXURY sẽ chia sẻ chi tiết từng bước từ giai đoạn chuẩn bị chiến lược, thiết kế chuyên sâu, đến thi công và bàn giao, đảm bảo dự án của bạn thành công tốt đẹp.
Nội Dung Bài Viết
Tại sao cần một quy trình thiết kế thi công văn phòng bài bản?
Thiết kế văn phòng là một khoản đầu tư chiến lược vào tài sản, thương hiệu và con người, chứ không đơn thuần là việc sắp xếp bàn ghế. Một quy trình rõ ràng, khoa học sẽ mang lại những lợi ích cốt lõi, giúp doanh nghiệp tránh được các rủi ro không đáng có.
- Đảm bảo sự nhất quán từ ý tưởng đến thực tế: Một quy trình mạch lạc giúp hiện thực hóa concept thiết kế đúng như mong muốn, ngăn chặn những khác biệt và sai lệch giữa bản vẽ 3D và công trình hoàn thiện.
- Tối ưu chi phí và hạn chế phát sinh: Việc lập kế hoạch và dự toán chi tiết ngay từ đầu giúp kiểm soát ngân sách một cách hiệu quả, đảm bảo chi phí được quản lý minh bạch và tránh các khoản phát sinh không lường trước.
- Tiết kiệm thời gian và đảm bảo tiến độ: Luồng công việc được sắp xếp logic giúp các giai đoạn được triển khai liên tục, không bị gián đoạn hay chồng chéo, từ đó đảm bảo dự án hoàn thành đúng thời hạn đã cam kết.
- Đáp ứng các tiêu chuẩn kỹ thuật và pháp lý: Quy trình chuyên nghiệp luôn tích hợp việc tuân thủ các quy định quan trọng của pháp luật và tòa nhà, đặc biệt là các tiêu chuẩn về an toàn PCCC, kết cấu và hệ thống cơ điện.
- Tăng cường hiệu quả hợp tác: Một quy trình rõ ràng tạo ra một khuôn khổ làm việc chung, giúp sự phối hợp giữa chủ đầu tư, kiến trúc sư, và các nhà thầu diễn ra nhịp nhàng, giảm thiểu sai sót và tranh chấp.

Quy trình thiết kế nội thất văn phòng toàn diện từ A – Z

Giai đoạn 1: Chuẩn bị chiến lược
Đây là giai đoạn nền tảng, quyết định phương hướng và sự thành công của toàn bộ dự án. Trước khi bất kỳ bản vẽ nào được thực hiện, việc chuẩn bị kỹ lưỡng sẽ giúp mọi quyết định sau này trở nên chính xác và hiệu quả.
Xác định nhu cầu và mục tiêu cốt lõi
Bước đầu tiên là trả lời những câu hỏi mang tính định hướng để làm rõ mục tiêu của không gian văn phòng mới. Việc này sẽ là nền tảng cho mọi quyết định thiết kế sau này.
- Văn phòng phục vụ bao nhiêu nhân sự?
- Cần những khu vực chức năng nào (phòng họp, khu tiếp khách, pantry, khu thư giãn)?
- Doanh nghiệp muốn thể hiện hình ảnh thương hiệu như thế nào (trẻ trung, sang trọng, sáng tạo, tối giản)?
Việc làm rõ những mục tiêu này sẽ giúp đơn vị thiết kế đưa ra giải pháp không gian phù hợp nhất với văn hóa và chiến lược của doanh nghiệp.

Lập ngân sách tổng thể
Ngân sách là yếu tố quyết định quy mô, phong cách thiết kế và chất lượng vật liệu của dự án. Một kế hoạch tài chính rõ ràng giúp doanh nghiệp kiểm soát chi phí hiệu quả. Hãy phân bổ ngân sách dự kiến cho các hạng mục chính:
- Chi phí thiết kế: Phí tư vấn, lên ý tưởng, bản vẽ 2D, 3D và hồ sơ kỹ thuật.
- Chi phí thi công: Bao gồm các hạng mục phần thô (trần, sàn, vách) và sản xuất, lắp đặt nội thất.
- Chi phí thiết bị: Các thiết bị công nghệ như máy chiếu, hệ thống mạng, camera an ninh.
- Chi phí dự phòng: Khoản ngân sách (thường từ 10-15%) cho các phát sinh không lường trước.
Lựa chọn mặt bằng phù hợp
Một mặt bằng tốt có thể giúp giảm đáng kể chi phí và thời gian cải tạo. Khi lựa chọn địa điểm, doanh nghiệp cần xem xét kỹ lưỡng các yếu tố sau:
- Vị trí: Giao thông có thuận tiện cho nhân viên và đối tác không?
- Diện tích: Có đủ không gian cho số lượng nhân sự và các khu vực chức năng cần thiết không?
- Hiện trạng: Tình trạng của hệ thống điện, nước, điều hòa, trần, và sàn như thế nào?
- Ánh sáng tự nhiên: Mặt bằng có đón được nhiều ánh sáng tự nhiên không, giúp tiết kiệm năng lượng và tạo cảm giác dễ chịu.

Giai đoạn 2: Quy trình thiết kế từ ý tưởng đến bản vẽ
Sau khi đã có nền tảng chiến lược vững chắc, dự án sẽ chuyển sang giai đoạn thiết kế chuyên sâu, nơi các ý tưởng được cụ thể hóa thành những bản vẽ kỹ thuật chi tiết.
Khảo sát & Lập hồ sơ hiện trạng
Đây là bước làm việc thực địa của đội ngũ kỹ thuật và kiến trúc sư nhằm thu thập dữ liệu chính xác về mặt bằng.
- Đo đạc kích thước thực tế: Ghi nhận chính xác chiều dài, rộng, cao và xác định vị trí các yếu tố kết cấu cố định như cột, dầm, cửa sổ.
- Đánh giá hệ thống kỹ thuật hiện hữu: Kiểm tra tình trạng hệ thống điện, nước, điều hòa không khí, và hệ thống PCCC có sẵn.
- Ghi nhận các điều kiện khác: Hướng ánh sáng tự nhiên, vật liệu hiện trạng của sàn, trần, tường.
Kết quả khảo sát được tổng hợp thành hồ sơ hiện trạng, đảm bảo mọi phương án thiết kế đều khả thi và chính xác.

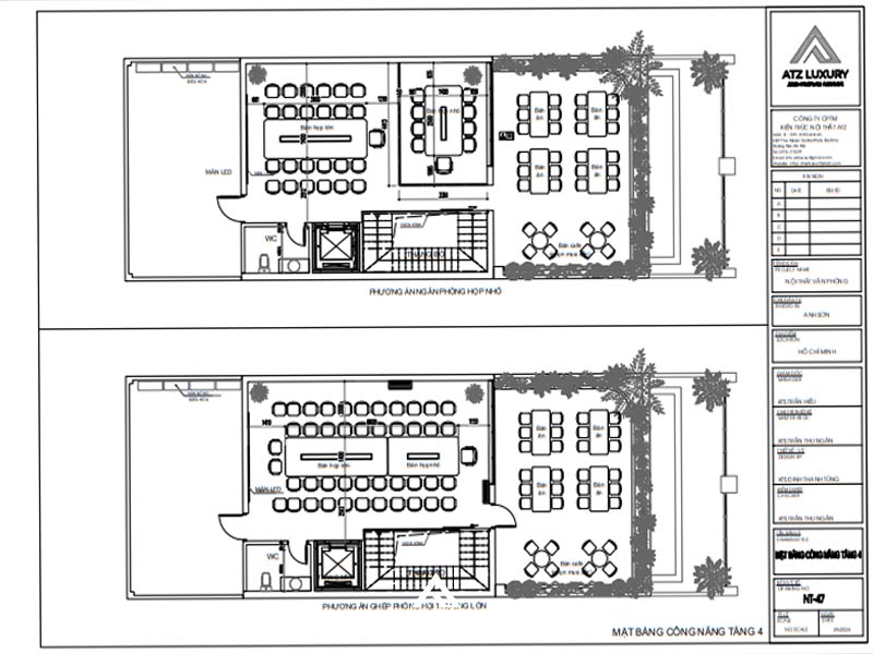
Thiết kế mặt bằng công năng 2D (Layout)
Đây là bước đi mang tính khoa học, nơi logic và chức năng được ưu tiên hàng đầu. Dựa trên hồ sơ hiện trạng, kiến trúc sư sẽ phát triển bản vẽ mặt bằng 2D để sắp xếp không gian một cách hiệu quả nhất. Bản vẽ này xác định vị trí của từng khu vực chức năng như khu làm việc chung, phòng giám đốc, phòng họp, quầy lễ tân, pantry, nhằm tối ưu hóa luồng di chuyển, quy trình làm việc và sự tương tác giữa các phòng ban.

Thiết kế phối cảnh 3D
Nếu bản vẽ 2D là khoa học thì thiết kế 3D chính là nghệ thuật. Đây là giai đoạn thổi hồn vào không gian, chuyển hóa những sơ đồ logic thành một tầm nhìn giàu cảm xúc và thẩm mỹ. Bản vẽ phối cảnh 3D giúp chủ đầu tư hình dung rõ nét không gian văn phòng sau khi hoàn thiện, thể hiện chi tiết các yếu tố như màu sắc, ánh sáng, vật liệu, và cách sắp đặt nội thất để truyền tải đúng tinh thần và bản sắc thương hiệu. Ở giai đoạn này, khách hàng có thể yêu cầu chỉnh sửa để đảm bảo thiết kế cuối cùng hoàn toàn đúng với mong muốn.

Triển khai hồ sơ kỹ thuật thi công
Sau khi bản vẽ 3D được phê duyệt, đội ngũ kỹ thuật sẽ triển khai bộ hồ sơ kỹ thuật thi công chi tiết. Đây là tài liệu cốt lõi, là ngôn ngữ chung để đội ngũ thi công thực hiện công trình một cách chính xác tuyệt đối. Hồ sơ này bao gồm:
Bản vẽ chi tiết kiến trúc:
- Mặt bằng lát sàn các tầng.
- Mặt đứng, mặt cắt, chi tiết thang bộ, vệ sinh.
Bản vẽ kết cấu:
- Mặt bằng móng, dầm móng, cổ cột.
- Chi tiết cột, dầm, sàn các tầng.
Bản vẽ thiết kế hệ thống cơ điện (MEP):
- Sơ đồ hệ thống điện tổng thể.
- Chi tiết hệ thống cấp thoát nước, điều hòa không khí, internet và chiếu sáng.
Lập dự toán chi tiết và ký kết hợp đồng
Dựa trên hồ sơ kỹ thuật thi công, một bảng dự toán chi phí chi tiết sẽ được lập ra, bóc tách khối lượng từng hạng mục vật tư và nhân công. Sau khi hai bên thống nhất về dự toán, hợp đồng thiết kế và/hoặc thi công sẽ được ký kết. Hợp đồng sẽ quy định rõ phạm vi công việc, tiến độ, điều khoản thanh toán và trách nhiệm của các bên.

Giai đoạn 3: Thi công, giám sát và bàn giao
Đây là “khoảnh khắc của sự thật”, nơi những bản vẽ thiết kế tỉ mỉ đối mặt với thực tế thi công. Toàn bộ khoản đầu tư của doanh nghiệp sẽ được hiện thực hóa hoặc trở nên lãng phí trong giai đoạn này. Nếu không có sự giám sát chặt chẽ, ngay cả thiết kế xuất sắc nhất cũng có thể dẫn đến sai sót tốn kém, chậm tiến độ và một sản phẩm cuối cùng không đáp ứng kỳ vọng.
Thi công phần thô và sản xuất nội thất
Giai đoạn này thường bao gồm hai quy trình diễn ra song song để tối ưu hóa tiến độ:
- Tại công trình (Fitting Out): Đội ngũ thi công sẽ triển khai các hạng mục cố định như xây, trát, đi lại hệ thống M&E (điện, nước, mạng), đóng trần thạch cao, ốp lát sàn, và thi công vách ngăn.
- Tại xưởng: Dựa trên bản vẽ kỹ thuật, các sản phẩm nội thất rời như bàn làm việc, ghế, tủ tài liệu, quầy lễ tân sẽ được sản xuất hàng loạt, đảm bảo sự đồng bộ và chất lượng.
Giám sát thi công chặt chẽ
Giám sát là hoạt động không thể thiếu để đảm bảo công trình được thực hiện đúng với thiết kế và tiêu chuẩn chất lượng.
Giám sát thi công nội thất là quá trình theo dõi, kiểm tra, và kiểm soát toàn bộ hoạt động thi công nhằm đảm bảo công trình được hoàn thiện đúng theo bản vẽ thiết kế, đáp ứng các yêu cầu về chất lượng, tiến độ và an toàn lao động.
Người giám sát sẽ kiểm tra chất lượng vật liệu đầu vào, kỹ thuật thi công của đội thợ, đối chiếu thực tế với bản vẽ và đôn đốc tiến độ, kịp thời xử lý các vấn đề phát sinh.
Lắp đặt, hoàn thiện và nghiệm thu
Đây là những bước cuối cùng để hoàn thiện văn phòng. Các sản phẩm nội thất sản xuất tại xưởng sẽ được vận chuyển đến công trình để lắp đặt vào đúng vị trí theo bản vẽ. Tiếp theo là các công đoạn hoàn thiện cuối cùng như sơn dặm, lắp đặt đèn, trang trí và dọn dẹp. Cuối cùng, một đợt vệ sinh công nghiệp toàn diện sẽ được thực hiện để chuẩn bị cho bước nghiệm thu quan trọng. Trong quá trình nghiệm thu, chủ đầu tư sẽ cùng đơn vị thi công kiểm tra toàn bộ công trình, đối chiếu với hợp đồng và thiết kế đã duyệt trước khi tiến hành thanh toán cuối cùng và bàn giao chính thức.

Xem thêm:
- Dịch vụ thiết kế thi công văn phòng Hà Nội
- Mẫu thiết kế văn phòng làm việc tại TPHCM
- Báo giá thiết kế thi công văn phòng trọn gói mới nhất
- Top 15+ đơn vị thiết kế thi công văn phòng uy tín nhất
Một quy trình chuyên nghiệp là khoản đầu tư cho tương lai
Một dự án văn phòng thành công, đáp ứng được cả về thẩm mỹ, công năng và ngân sách, luôn bắt nguồn từ một quy trình thiết kế văn phòng toàn diện và chuyên nghiệp. Việc tuân thủ một quy trình bài bản không chỉ giúp giảm thiểu rủi ro mà còn đảm bảo rằng kết quả cuối cùng xứng đáng với sự đầu tư của doanh nghiệp.
Suy cho cùng, một quy trình thiết kế văn phòng được thực thi tốt sẽ vượt ra ngoài phạm vi xây dựng đơn thuần; đó là một quyết định kinh doanh mang tính chiến lược. Không gian làm việc tạo ra sẽ trở thành một tài sản đắc lực, là một công cụ để định hình văn hóa, thu hút nhân tài và thúc đẩy năng suất.
Nếu bạn có nhu cầu thiết kế thi công văn phòng, thì hãy liên hệ ATZ LUXURY để được tư vấn miễn phí nhé!
Thảo Phương – thietkenoithatatz.com

