Biệt thự mini 1 tầng mái Thái đang được rất nhiều người quan tâm và lựa chọn. Những mẫu thiết kế này không chỉ có giá thành hợp lý mà còn mang đến cho người sử dụng sự thoải mái, tiện nghi và không kém phần sang trọng. Cùng ATZ điểm qua top 5 mẫu thiết kế biệt thự mini mái Thái 1 tầng tiện nghi, giá rẻ để có thể lựa chọn cho mình một căn biệt thự hoàn hảo nhất nhé!
Mẫu thiết kế biệt thự mini 1 tầng mái Thái 120m2 đơn giản mà đẹp
Mẫu biệt thự mini 1 tầng 120m2 đẹp là một sự kết hợp hoàn hảo giữa phong cách hiện đại và nét tân cổ điển nhẹ. Với thiết kế độc đáo cùng chi phí hợp lý, căn biệt thự này mang đến cho gia chủ không gian sống rộng rãi, thoáng mát và tiện nghi đầy đủ.
mẫu biệt thự mini 1 tầng nổi bật với tông màu trắng chủ đạo kết hợp màu nâu nhạt tạo cảm giác ấm áp, sang trọng. Mặt tiền rộng với hai trụ tròn vững chãi, phần đế nổi bật nhờ được ốp đá. Từng đường phào chỉ tinh tế, các đường cong mềm mại kết hợp cùng những họa tiết bắt mắt. Bậc tam cấp dẫn thẳng vào cửa chính được ốp đá hoa văn, làm cho ngôi nhà trông cao và bề thế hơn.
Mái thái của biệt thự mini 120m2 được thiết kế tinh tế, giật cấp tạo nên một nét đẹp độc đáo và thu hút ánh nhìn của mọi người. Khoảng sân rộng, được lát gạch sạch sẽ, thuận lợi cho xe ra vào. Đây cũng là không gian lý tưởng để gia đình có trẻ nhỏ vui đùa hoặc các hoạt động ngoài trời của cả nhà.
Ngoài sảnh chính, mẫu biệt thự mini mái Thái 1 tầng còn có sảnh phụ với thiết kế tương tự. Cửa chính được làm từ gỗ mang lại cảm giác gần gũi nhưng cũng không kém phần sang trọng. Các cửa sổ lớn, lắp kính cường lực giúp tận dụng tối đa ánh sáng từ tự nhiên. Dọc theo các sảnh của ngôi nhà đều được bố trí bồn hoa, mang lại cảm giác tươi mới, hòa mình với thiên nhiên.
mẫu biệt thự mini 1 tầng cũng được thiết kế gác lửng với mái che lắp kính trong suốt. Tại đây, sẽ là 1 địa điểm để ngồi thưởng trà, đọc sách và sinh hoạt gia đình mỗi khi rảnh rỗi.
Biệt thự mini 1 tầng mái Thái đẹp mang phong cách châu Âu sang trọng
Biệt thự mái Thái 1 tầng đẹp mang phong cách châu Âu sang trọng đang rất nhiều khách hàng yêu thích bởi nét đẹp sang trọng và thanh lịch đầy quyến rũ.
Nổi bật của mẫu biệt thự mái Thái 1 tầng này chính là việc sử dụng mái thái giật cấp, với màu ghi xám hiện đại. Việc sử dụng loại mái có độ dốc như này sẽ phát huy tối đa công năng trong việc thoát nước, ngoài ra cũng có thể điều hòa được không khí cho căn nhà.
Mặt tiền mẫu biệt thự mini 1 tầng mái Thái nổi bật với khối trụ cột tròn, vững chắc, cùng mái vòm cong mềm mại. Các đường phào chỉ, kẻ chỉ đơn giản nhưng cực kì tinh tế, tạo điểm nhấn cho biệt thự.
Cửa chính và cửa sổ đều được sử dụng toàn bộ kính cường lực. Giúp mang lại toàn bộ ánh sáng từ tự nhiên vào trong căn phòng, làm cho bầu không khí thoáng đãng, dễ chịu. Sân nhà được lát gạch ngay ngắn, sạch sẽ, thuận lợi cho xe ra vào cũng như nhu cầu đi lại của gia chủ. Xung quanh ngôi nhà được bao phủ bởi cây cối xanh mướt mang lại cảm giác như được hòa mình vào thiên nhiên.
Bản vẽ thiết kế biệt thự vườn mini 1 tầng mái Thái đẹp ở nông thôn
Bản vẽ thiết kế mẫu biệt thự 1 tầng đẹp có diện tích nhỏ cùng với sân vườn đẹp mắt là một ngôi nhà nhiều người mơ ước. Nếu bạn yêu thích sự gần gũi với thiên nhiên và không gian sống rộng rãi thì đừng bỏ qua mẫu biệt thự này nhé. Với kiến trúc mái thái truyền thống độc đáo, ngôi nhà này mang đến cho bạn sự thoải mái, thư giãn và tiện nghi tuyệt đối.
Thiết kế biệt thự mini 1 tầng đẹp và cực kỳ độc đáo và nổi bật trong mắt người nhìn. Điểm đặc biệt ở mẫu biệt thự mini này là mái thái vẫn được thiết kế ở trên cửa sổ. Điều này cũng góp phần phát huy tối đa công năng của mái thái trong việc thoát nước mưa, cũng như điều hòa không khí bên trong.
Một trong những điểm nhấn nổi bật của mẫu biệt thự nhà vườn 1 tầng mái Thái, chính là không gian cảnh quan sân vườn rộng rãi, đẹp mắt. Thảm cỏ xanh mướt, từng khóm cây được cắt tỉa kiểu cách, ở giữa được thiết kế lối đi sạch sẽ. Tổng thể tạo nên quan cảnh sống động, mang lại cảm giác như được hòa mình với thiên nhiên.
Mặt tiền của mẫu biệt thự nhà vườn mini 1 tầng mái Thái nổi bật với từng khối vuông vức, chắc chắn. Các đường phào chỉ đơn giản, nhưng vô cùng tinh tế. Cửa chính được làm từ gỗ đen với hoa văn sang trọng, ấm cúng. Tận dụng không gian bên ngoài nhà rộng nên việc lựa chọn làm những bồn hoa, cây cảnh ở những vị trí thích hợp và thông minh. Sân nhà rộng rãi, được lát gạch ngay ngắn, thuận lợi cho việc đỗ xe và ra vào.
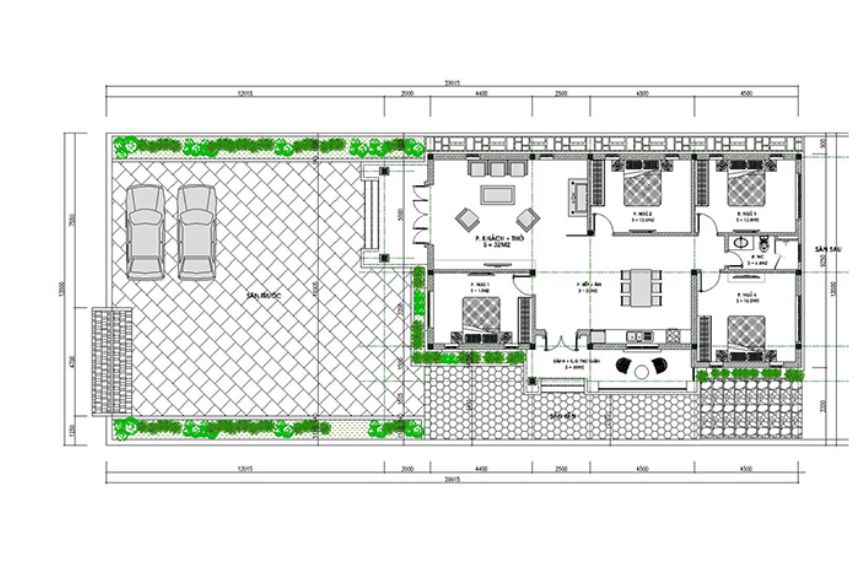
Về bản vẽ mặt bằng công năng được kiến trúc sư bố trí sắp xếp công năng rất hợp lý và khoa học, sân vườn đẹp mắt, giúp bạn tận hưởng được sự gần gũi với thiên nhiên, không gian sống tiện nghi và thoải mái.
Phối cảnh mẫu biệt thự mini 1 tầng mái Thái 8x12m đẹp và sang trọng
Phối cảnh mẫu biệt thự mini mái Thái 1 tầng nhỏ gọn do KTS Dũng Ngô thiết kế có diện tích xây dựng 96m2 là một trong những mẫu biệt thự đẹp và được ưa chuộng hiện nay. Với kiểu dáng mái Thái truyền thống độc đáo, ngôi nhà này chắc chắn sẽ mang đến cho bạn một không gian sống hoàn hảo.
Mẫu biệt thự mini mái Thái 1 tầng được xây dựng dựa trên yếu tố không gian mở, tạo cảm giác rộng rãi và thông thoáng. Mẫu biệt thự đẹp được bố trí hợp lý, từ sân vườn đến không gian sống bên trong, mỗi không gian đều được thiết kế nhiều cửa sổ để tận dụng tối đa ánh sáng và không khí tự nhiên.
Hệ thống mái thái dốc với 2 mái hình chữ A truyền thống và quen thuộc. Với thiết kế mái này, mẫu biệt thự mini này sẽ tránh được tình trạng tù đọng nước mưa, nhất là ở nơi có khí hậu mưa nhiều như nước ta.
Hai cột trụ phía trước được thiết kế với kiểu dáng độc đáo, màu nâu nổi bất giữa tông màu trắng chủ đạo của mẫu biệt thự mini 1 tầng mái Thái. Các đường kẻ chỉ đơn giản nhưng cực kỳ hợp lý, tạo điểm nhấn cho mặt tiền biệt thự. Cửa chính được làm từ gỗ, với các họa tiết bắt mắt, mang lại cảm giác ấm cúng, nhưng cũng không kém phần sang trọng.
Không gian bên ngoài mẫu biệt thự mini 1 tầng mái Thái được tận dụng làm những bồn hoa, cây cảnh. Tạo sự liên kết chặt chẽ giữa thiết kế ngôi nhà gắn bó với thiên nhiên, làm cho không gian thêm tươi mới và tràn đầy sức sống.
Mái hiên của biệt thự mini mái Thái với thiết kế gỗ tự nhiên bên cạnh sảnh chính, có thể trang trí bằng cách treo nhiều chậu cây cảnh và hoa. Đây sẽ là một địa điểm lý tưởng để ngồi thư giãn mỗi khi rảnh rỗi. Khoảng sân rộng, được lát gạch bóng loáng, chống trơn trượt cho những ngày mưa. Với thiết kế sân này, cũng sẽ thuận lợi để đỗ xe, và cho xe ra vào nhà.
Bao quanh mẫu biệt thự mini mái Thái 1 tầng là tường rào kiên cố, chắc chắn nhưng cũng không kém phần đẹp mắt. Thiết kế các cột sắt kiểu cách, cùng màu trắng sang trọng, góp phần tô điểm vào khối kiến trúc ấn tượng, độc đáo của mẫu biệt thự mái Thái này.
Mẫu thiết kế biệt thự mini mái Thái 1 tầng 3 phòng ngủ kiểu chữ L
Mẫu biệt thự mini chữ L 1 tầng mái Thái 3 phòng ngủ mang phong cách kiến trúc hiện đại. Với mái vòm độc đáo và thiết kế chữ L độc đáo, biệt thự này tạo ra một sự ấn tượng mạnh mẽ ngay từ cái nhìn đầu tiên. Ngôi nhà được thiết kế với mặt tiền rộng rãi và không gian mở tạo cảm giác thoải mái, thoáng đãng. Sảnh chính và sảnh phụ đều thiết kế hướng ra mặt, giúp tận dụng tối đa của ánh sáng và không khí trong lành.
Các cột trụ tròn mềm mại, chân đế được ốp đá hoa văn chắc chắn, nổi bật. Các đường phào chỉ, kẻ chỉ đơn giản nhưng tinh tế, tạo điểm nhấn cho căn biệt thự. Bậc tam cấp hướng thẳng về cửa chính, làm cho biệt thự mini mái Thái trông cao và bề thế hơn. Tất cả cửa đều làm từ chất liệu gỗ mang lại cảm giác gần gũi, ấm cúng nhưng cũng không kém phần sang trọng.
Khoảng sân rộng, được lát gạch gọn gàng, sạch sẽ, chống trơn trượt, thuận lợi cho việc đỗ xe và cho xe ra vào. Bồn hoa với những khóm hoa rực rỡ được bố trí thông minh, khoa học, góp phần làm cho không gian thêm tươi tắn, sinh động, tạo mối liên kết giữa biệt thự mini mái Thái 1 tầng với thiên nhiên.
Hi vọng Top 5 mẫu thiết kế biệt thự mini 1 tầng mái Thái mà ATZ giới thiệu trong bài viết này sẽ giúp bạn có cho mình những lựa chọn phù hợp khi thiết kế không gian. Nếu còn bất kỳ thắc mắc nào về kiểu biệt thự này, vui lòng liên hệ Hotline: 0915.178.091 để được đội ngũ KTS chuyên nghiệp của chúng tôi tư vấn miễn phí.
Bạn đang ấp ủ ý tưởng thiết kế quán cafe sân vườn độc đáo, thu hút khách hàng? Bạn muốn tạo nên một không gian quán cà phê sân vườn vừa đẹp mắt vừa mang lại trải nghiệm thư giãn...
Hiện nay, nhà 2 tầng 5x20m đang là một trong những lựa chọn phổ biến nhất cho các gia đình trẻ bởi sự tiện nghi, thoáng mát, tràn ngập năng lượng sống, chi phí xây dựng phải chăng và đáp...
Mẫu nhà mái Nhật 2 tầng đang trở thành một trong những xu hướng kiến trúc được nhiều gia đình Việt Nam ưa chuộng bậc nhất. Với sự kết hợp tinh tế giữa vẻ đẹp thanh lịch, tối giản và công...
Dựa vào tiêu chuẩn thiết kế nhà hàng - những khuôn mẫu, tiêu chí cố định chung sẽ giúp cho việc phân bổ, thiết kế không gian nhà hàng được hài hòa, hợp lý và bài trí hút khách nhằm...
Hiện nay do diện tích đất xây dựng ngày càng hạn hẹp, các mẫu nhà 2 tầng mặt tiền 4m đang ngày càng được ưa chuộng. Với ưu điểm diện tích vừa phải, chi phí xây dựng hợp lý, mẫu...
ĐĂNG KÝ NHẬN BÁO GIÁ NHANH [contact-form-7 id="28110" title="Đặt lịch tư vấn"] [caption id="attachment_111082" align="aligncenter" width="1200"] Bảng giá thiết kế nội thất tại ATZ LUXURY[/caption] Hiện nay, đơn giá thiết kế nội thất văn phòng dao động từ 100,000 VNĐ/m2...
Mẫu nhà 2 tầng 5x18m với phong cách hiện đại đang trở thành lựa chọn yêu thích của nhiều người. Những mẫu nhà này được đánh giá cao về vẻ đẹp tinh tế, độc đáo và sự tối giản. Chúng...
Thiết kế phòng trà thiền tại gia đang ngày càng được rất nhiều gia chủ quan tâm hiện nay. Bởi đây là nơi thư giãn nghỉ ngơi bên cạnh ấm trà ngon sau những ngày dài mệt mỏi. Không gian...
Trong quy hoạch đô thị đương đại tại Việt Nam, mặt tiền 6m được giới chuyên môn đánh giá là "tỷ lệ vàng" để kiến tạo nên những tuyệt tác kiến trúc phố thị. Một mẫu thiết kế nhà 2...
Mẫu thiết kế nhà 2 tầng 6x12m ngày càng nhận được nhiều sự yêu mến và ưa chuộng của mọi người, nhất là những gia đình trẻ có 3 - 4 thành viên. Nổi bật với lối kiến trúc hiện...