Với thiết kế hiện đại, các KTS luôn hướng đến sự tiện nghi và tối giản trong không gian sống. Các mẫu biệt thự vườn 1 tầng 3 phòng ngủ mái bằng đẹp mắt mà ATZ LUXURY chia sẻ dưới đây sẽ khiến bạn không thể rời mắt bởi sự sang trọng và ấn tượng của nó. Cùng chúng tôi tham khảo không gian các biệt thự qua nội dung dưới đây nhé!
Mẫu biệt thự vườn 1 tầng 3 phòng ngủ mái bằng 100m2 tại Bắc Giang
Mẫu thiết kế biệt thự nhà vườn 1 tầng theo phong cách hiện đại cùng với sân thượng không gian mở giúp gia tăng diện tích sử dụng. Không chỉ vậy, bao quanh căn biệt thự là khoảng sân vườn được bố trí khá tỉ mỉ tạo nên một không gian sang trọng đầy cuốn hút.
Đường nét đơn giản, sử dụng khối vuông sắc nét cùng với hệ mái bằng hiện đại đã tạo nên một căn biệt thự vô cùng tinh tế và độc đáo. Không những vậy, màu trắng tinh khôi đã làm nổi bật lên nét sang trọng và đẳng cấp của căn biệt thự này.
Thiết kế cửa kính lớn tạo nên một không gian mở giúp nội thất căn biệt thự hòa vào thiên nhiên. Đồng thời thiết kế này giúp không khí bên trong biệt thự luôn được lưu thông và trong lành hơn.
Phía sau căn biệt thự bố trí thêm cầu thang đi lên sân thượng. Không gian tại đây hệt như một giếng trời giúp căn biệt thự thêm phần sáng sủa và thoáng mát hơn.
Thiết kế không gian mở giúp cho không gian bên trong mẫu nhà 1 tầng 3 phòng ngủ 100m2 đón nhiều ánh sáng tự nhiên hơn.
Xung quanh biệt thự được bố trí những vườn hoa nhỏ cùng với sỏi trắng giúp cho sân vườn thêm phần độc đáo và lạ mắt. Bên cạnh đó, KTS cũng tỉ mỉ bố trí thêm những bậc đá tạo thành lối đi lại trong sân nhà giúp gia chủ di chuyển dễ dàng hơn.
Phần sân thượng được ốp nền gỗ ép cho thấy gia chủ cũng rất chú tâm vào khoảng không gian thư giãn này. Tại đây, gia đình bố trí thêm ghế ngồi cùng với bàn nhỏ tạo nên một không gian chill, thư giãn dành cho các thành viên trong gia đình.
Mặt trước căn biệt thự được các KTS bố trí thêm mái hiên rộng, sử dụng chất liệu gỗ. Khu vực này gia đình có thể dùng làm chỗ đậu xe hoặc đây sẽ là vị trí mở tiệc ngoài trời, bàn trà dành cho gia chủ.
Vật liệu sử dụng trong căn biệt thự đều được tối giản hết mức có thể nhưng vẫn đảm bảo tính tiện nghi, cao cấp khi sử dụng.
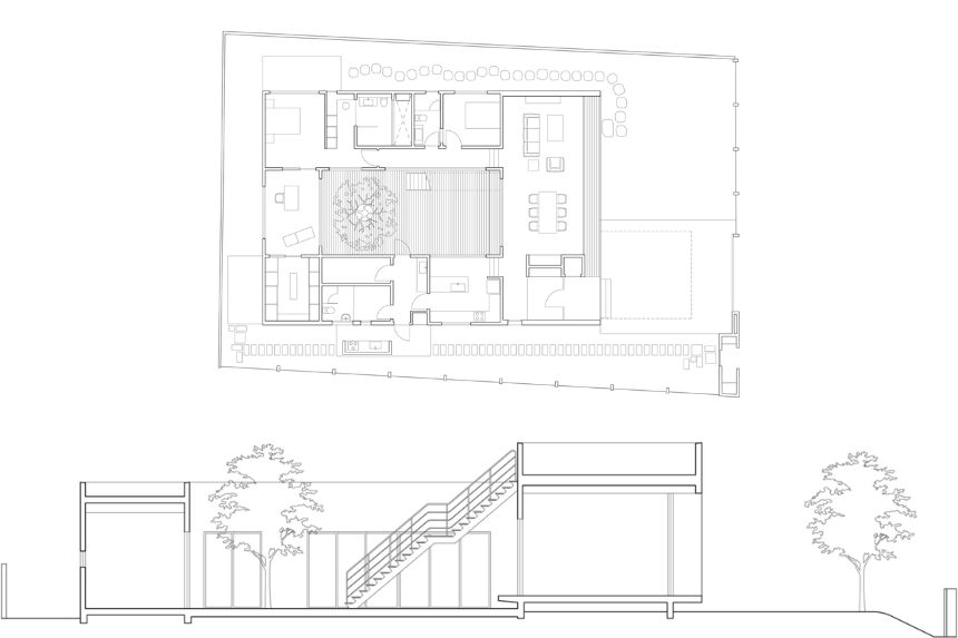
Bản vẽ mặt bằng bố trí công năng biệt thự vườn 1 tầng mái bằng 3 phòng ngủ.
Mái bằng cũng được ứng dụng nhiều trong những công trình biệt thự vườn, nghỉ dưỡng hiện đại ngày nay. Bởi, loại hình này có chi phí xây dựng rẻ hơn so với các loại hình khác. Không chỉ vậy, không gian biệt thự vô cùng hiện đại, tiện nghi tạo nên vẻ đẳng cấp, sang chảnh khi xây dựng công trình.
Khuôn viên biệt thự nhà vườn 1 tầng 3 phòng ngủ được thiết kế đầy đủ công năng với các tiện nghi như: Bể bơi, ghế phơi nắng, sân vườn nhỏ, không gian bàn trà và chòi nghỉ mát.
Mẫu nhà 1 tầng 3 phòng ngủ 120m2 được thiết kế khối vuông sắc nét với màu trắng chủ đạo làm tôn lên nét tiện nghi hiện đại. Đặc biệt, để tạo điểm nhấn cho không gian, KTS đã bố trí thêm mảng tường ốp đá tự nhiên khiến căn biệt thự thêm phần độc đáo.
Bể bơi nhân tạo được bố trí ngay giữa khu vườn. Ghế tắm nắng được đặt ngay cạnh bể bơi đem đến một không gian nghỉ dưỡng tuyệt vời.
Không những vậy, KTS còn bố trí thêm chòi nghỉ mát cùng với kho chứa đồ nhỏ. Đây sẽ là khu vực nghỉ ngơi tuyệt vời cho những gia đình nhỏ.
Xung quanh mẫu nhà 1 tầng 3 phòng ngủ hiện đại được bố trí thêm nhiều cửa kính giúp không khí bên trong biệt thự thêm phần thông thoáng và trong lành hơn.
Bàn ăn và bàn tiếp khách được bố trí không gian mở tạo nên một không khí trong lành thoáng mát khi sinh hoạt tại đây.
Bàn tiếp khách được thiết kế khá đơn giản nhưng vô cùng tỉ mỉ. Cùng với đó là đệm êm ái giúp người dùng thoải mái hơn khi sử dụng.
Nội thất bên trong cũng được bố trí vô cùng tiện nghi và sang trọng. Căn biệt thự sử dụng phong cách thiết kế tối giản, hiện đại tạo nên một không gian tinh tế, đẳng cấp
Về đêm, căn biệt thự thêm phần lung linh hơn với hệ thống đèn nhân tạo ấn tượng dọc theo mái hiên và bể bơi trong sân vườn. Đây quả là một không gian sống tuyệt vời dành cho những ai yêu thích không gian thư giãn, thoải mái.
Thiết kế biệt thự nhà vườn 1 tầng 3 phòng ngủ mái bằng giá rẻ ở nông thôn
Mẫu biệt thự vườn 1 tầng mái bằng hiện đại nổi bật bởi màu đen sang trọng cùng với ngoại thất gỗ tự nhiên. Không chỉ vậy, ngoại thất vô cùng ấn tượng với hệ thống đèn độc đáo khiến cho các đường nét thêm phần nổi bật và sắc sảo hơn. Sử dụng chất liệu đơn giản và các vật liệu mới khiến cho biệt thự vô cùng sang trọng và tối ưu chi phí hơn.
Hệ thống đèn hắt được bố trí dọc theo bậc thang và đèn sân vườn giúp cho các đường nét nhà 1 tầng 3 phòng ngủ nông thôn này trở nên sắc nét và ấn tượng hơn.
Thiết kế mái bằng hiện đại nổi bật ngay giữa khu vườn ấn tượng. Sân vườn được bố trí tiểu cảnh đẹp mắt gồm: hòn đá non bộ tự nhiên, cây cảnh và thảm cỏ xanh mát.
Bản vẽ thiết kế biệt thự sân vườn 1 tầng 3 phòng ngủ 1 phòng thờ mái bằng
Đa số các gia đình Việt Nam đều xây dựng một không gian riêng dành cho việc thờ cúng. Bởi đây là một trong những nét đẹp truyền thống của nước ta từ xưa đến nay. Do đó, bản vẽ thiết kế biệt thự vườn 1 tầng 3 phòng ngủ có phòng thờ mái bằng cũng được khá nhiều gia đình lựa chọn. Kết hợp giữa xu hướng hiện đại cùng với nét truyền thống đã đem đến cho căn biệt thự vẻ độc đáo, gần gũi và vô cùng cuốn hút.
Mặt tiền nhà 1 tầng 3 phòng ngủ 1 phòng thờ này được thiết kế sang trọng với hàng rào ốp đá tự nhiên cùng với hàng cây xanh được cắt tỉa gọn gàng. Nhờ vậy mà căn biệt thự khiến người ta phải choáng ngợp bởi vẻ đẳng cấp, hòa cùng thiên nhiên của nó.
Thiết kế không gian mở vô cùng ấn tượng với của kính lớn. Chính vì thế mà không gian bên trong căn biệt thự luôn tươi mới và trong lành hơn.
Những khối vuông sắc nét cùng những mảng tường ốp đá tự nhiên đã làm tôn lên vẻ ngoài sang trọng và bề thế của căn biệt thự này.
Cổng ốp đá giúp căn biệt thự thêm phần bề thế và sang trọng hơn.
Xung quanh biệt thự 1 tầng 3 phòng ngủ được bố trí thêm các bồn hoa cùng với những cây cảnh đẹp mắt tạo nên một hệ sinh thái ấn tượng. Đồng thời, khu vườn tạo nên vẻ ngoài gần gũi thiên nhiên của căn biệt thự.
Hàng hoa và bồn cây được bố trí vô cùng đẹp mắt, tạo nên một nét đẹp đồng điệu với ngoại thất không gian.
Phòng khách biệt thự mang thiết kế hiện đại xen lẫn nét công nghiệp tạo nên một vẻ đẹp sang trọng và lịch lãm. Không chỉ vậy, sofa sử dụng chất liệu da bóng tạo nên nét mạnh mẽ, đồng điệu với không gian này.
Phòng ngủ cũng sử dụng vật liệu gỗ chủ đạo đem đến không gian vẻ mộc mạc, dịu nhẹ cho không gian. Đặc biệt, căn phòng bố trí thêm cửa sổ lớn cùng rèm kéo giúp không gian nghỉ ngơi thêm phần thoải mái, thư giãn hơn.
Phòng thờ thiết kế vô cùng trang nhã và ấn tượng. Căn phòng sử dụng nội thất gỗ chủ đạo cùng thiết kế tỉ mỉ và tinh tế. Nhìn vào căn phòng cho thấy gia chủ rất chú trọng không gian tại đây.
Biệt thự nhà vườn mái bằng 1 tầng 150m2 3 phòng ngủ
Màu sắc đen trắng tương phản đã khiến cho căn biệt thự này trở nên vô cùng ấn tượng. Căn biệt thự vườn 150m2 này sẽ là một không gian sống hoàn hảo dành cho những gia đình nhỏ cùng với khu vườn tuyệt đẹp.
Nhà 1 tầng 3 phòng ngủ 150m2 được bố trí thêm bể bơi ngay trong sân vườn tạo nên một không gian nghỉ dưỡng hoàn hảo cho cả gia đình.
khu vườn được bố trí thảm có xanh mát cùng với cây cảnh và hòn đá tiểu cảnh nhỏ khiến cho sân vườn đồng điệu với ngoại thất biệt thự hơn.
Các mẫu biệt thự vườn 1 tầng 3 phòng ngủ mái bằng đẹp mắt mà ATZ Luxury chia sẻ phía trên đây đều được chúng tôi lựa chọn kỹ. Mỗi không gian đều có nét đẹp độc đáo riêng. Hy vọng thông qua nội dung trên bạn sẽ có thêm ý tưởng mới mẻ cho không gian tuyệt đẹp của bạn. Đừng quên liên hệ ngay với chúng tôi để được tư vấn thiết kế biệt thự miễn phí nhé!
Bạn đang ấp ủ ý tưởng thiết kế quán cafe sân vườn độc đáo, thu hút khách hàng? Bạn muốn tạo nên một không gian quán cà phê sân vườn vừa đẹp mắt vừa mang lại trải nghiệm thư giãn...
Hiện nay, nhà 2 tầng 5x20m đang là một trong những lựa chọn phổ biến nhất cho các gia đình trẻ bởi sự tiện nghi, thoáng mát, tràn ngập năng lượng sống, chi phí xây dựng phải chăng và đáp...
Mẫu nhà mái Nhật 2 tầng đang trở thành một trong những xu hướng kiến trúc được nhiều gia đình Việt Nam ưa chuộng bậc nhất. Với sự kết hợp tinh tế giữa vẻ đẹp thanh lịch, tối giản và công...
Dựa vào tiêu chuẩn thiết kế nhà hàng - những khuôn mẫu, tiêu chí cố định chung sẽ giúp cho việc phân bổ, thiết kế không gian nhà hàng được hài hòa, hợp lý và bài trí hút khách nhằm...
Hiện nay do diện tích đất xây dựng ngày càng hạn hẹp, các mẫu nhà 2 tầng mặt tiền 4m đang ngày càng được ưa chuộng. Với ưu điểm diện tích vừa phải, chi phí xây dựng hợp lý, mẫu...
ĐĂNG KÝ NHẬN BÁO GIÁ NHANH [contact-form-7 id="28110" title="Đặt lịch tư vấn"] [caption id="attachment_111082" align="aligncenter" width="1200"] Bảng giá thiết kế nội thất tại ATZ LUXURY[/caption] Hiện nay, đơn giá thiết kế nội thất văn phòng dao động từ 100,000 VNĐ/m2...
Mẫu nhà 2 tầng 5x18m với phong cách hiện đại đang trở thành lựa chọn yêu thích của nhiều người. Những mẫu nhà này được đánh giá cao về vẻ đẹp tinh tế, độc đáo và sự tối giản. Chúng...
Thiết kế phòng trà thiền tại gia đang ngày càng được rất nhiều gia chủ quan tâm hiện nay. Bởi đây là nơi thư giãn nghỉ ngơi bên cạnh ấm trà ngon sau những ngày dài mệt mỏi. Không gian...
Trong quy hoạch đô thị đương đại tại Việt Nam, mặt tiền 6m được giới chuyên môn đánh giá là "tỷ lệ vàng" để kiến tạo nên những tuyệt tác kiến trúc phố thị. Một mẫu thiết kế nhà 2...
Mẫu thiết kế nhà 2 tầng 6x12m ngày càng nhận được nhiều sự yêu mến và ưa chuộng của mọi người, nhất là những gia đình trẻ có 3 - 4 thành viên. Nổi bật với lối kiến trúc hiện...