Thiết kế nội thất nhà phố 5 tầng ĐẸP ẤN TƯỢNG tại Long Biên – Chị Vân
Thiết kế nội thất nhà phố 5 tầng 110m2 tại Long Biên
- Địa điểm: Long Biên - Hà Nội
- Diện tích: Diện tích sàn 110m2
- Hạng mục: Phòng khách, 3 phòng ngủ, phòng bếp+ăn
- Phong cách thiết kế: Hiện đại
- Khách hàng: Chị Vân

































Thiết kế nội thất nhà phố vẫn luôn nhận được sự quan tâm của nhiều gia chủ. Bởi có diện tích giới hạn nên công năng sử dụng luôn được đặt lên hàng đầu. Ngoài ra còn phải đảm bảo tính thẩm mỹ và tối ưu chi phí nhất có thể…
Một trong những đơn vị có thể đáp ứng hoàn hảo đồng thời những tiêu chí của gia chủ không đâu khác ngoài ATZ LUXURY. Là đơn vị với nhiều năm kinh nghiệm cùng hàng trăm công trình lớn nhỏ. Mới đây ATZ có đón nhận sự hợp tác của chủ đầu tư Chị Vân ở Long biên. Anh mong muốn nhà phố 5 tầng sàn 110m2 với công năng tối ưu cho 5 người bao gồm 2 vợ chồng và 3 con nhỏ.
Sau khi tiếp nhận thông tin từ phía chị Vân, các KTS đã bắt tay vào tư vấn và thiết kế. Dưới đây là kết quả của các KTS nhà ATZ thực hiện và nhận được sự hài lòng từ phía gia đình chị. Cùng ATZ LUXURY tìm hiểu và theo dõi thiết kế nội thất nhà phố 5 tầng này qua bài viết dưới đây nhé.
Nội Dung Bài Viết
Phương án thiết kế nội thất nhà phố 5 tầng tại Long Biên
Bản vẽ thiết kế mặt bằng nhà phố 5 tầng 110m2
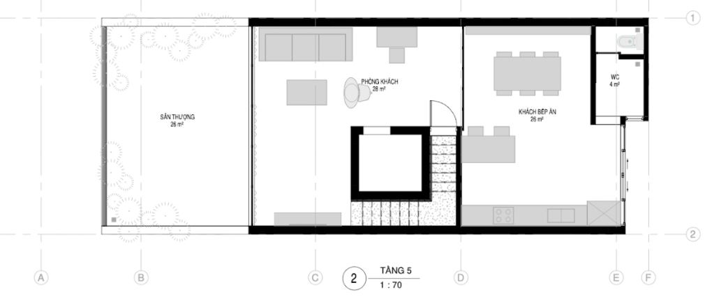
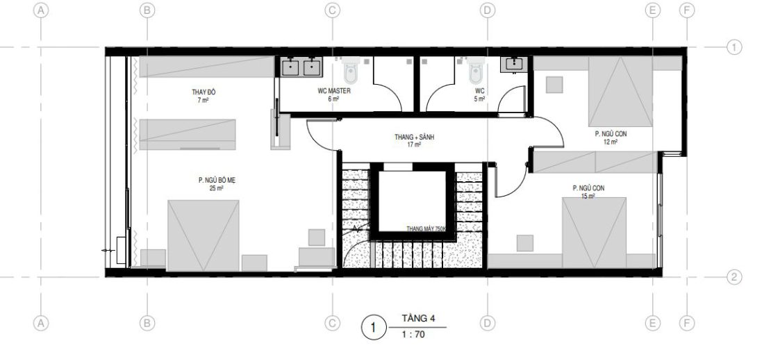
Diện tích mặt sàn 110m2 không phải diện tích quá lớn cũng không phải diện tích nhỏ. Nhưng với diện tích này, việc lựa chọn phong cách hiện đại để thiết kế là hoàn toàn hợp lý. Kiến trúc sư ATZ đã lên ý tưởng thiết kế cho 5 tầng của nhà với công năng khoa học được thể hiện chi tiết qua bản vẽ mặt bằng dưới đây:
Bản vẽ mặt bằng chi tiết công năng tầng 4

Bản vẽ mặt bằng chi tiết công năng tầng 5
Thiết kế nội thất phòng khách nhà phố 5 tầng
Hình ảnh thiết kế nội thất không gian phòng khách nhà phố
Với mục đích tối ưu hoá không gian nhất có thể, tầng 1 KTS đã thiết kế phòng khách liền kề với bếp. Tạo sự ngăn cách bằng một vách kính trong suốt. Điều này giúp mang đến sự phân cách giảm lượng mùi từ bếp ra phòng khách, và điều hoà từ phòng khách hoạt động tối ưu nhất cho khu vực này.
Phòng khách nhà phố hiện đại với những món đồ nội thất đơn giản, tinh tế nhưng không kém phần sang trọng.
Bố cục, vị trí của các đồ nội thất được sắp xếp gọn gàng và khoa học. Từ vị trí đặt sofa, đến tivi, kệ tủ, bình hoa,… đều được tính toán tỉ mỉ sao cho phù hợp và hoàn hảo nhất có thể.


Việc sử dụng sofa chữ I kết hợp với ghế đơn giúp tiết kiệm diện tích không gian lại có thể có thêm vị trí để đặt bàn piano khiến cho bố cục không gian chặt chẽ hơn. Các khoảng trống lại đặt cây xanh vừa để trang trí lại vừa mang lại sự thoải mái cho không gian.

KTS đã có sự kết hợp hoàn hảo giữa ánh sáng tự nhiên và ánh sáng nhân tạo. Việc tận dụng nguồn sáng tự nhiên bằng cách thiết kế cửa kính phối hợp với rèm của 2 lớp: nắng gắt có thể dùng cả 2 lớp, còn nắng dịu nhẹ thì không dùng rèm hoặc dùng lớp rèm mỏng bên trong. Ánh sáng nhân tạo được tạo ra bởi hệ thống đèn âm tường độc đáo, đặc sắc.
Bố cục không gian nội thất phòng khách mang đậm phong cách hiện đại và được tối ưu hóa công năng hoàn hảo.
Thiết kế phòng bếp +ăn
Như đã mô tả ở trên, phòng bếp được thiết kế liền kề với phòng khách nhưng được phân cách bởi vách kính để đảm bảo mùi đồ ăn không ảnh hưởng đến bên ngoài.

Cũng như thiết kế ánh sáng ở phòng khách, phòng bếp cũng sử dụng hệ thống đèn âm tường, vừa đảm bảo độ sáng vừa mang đến màu sắc riêng, độc đáo và hoàn hảo của không gian.
Ngoài ra, để tiết kiệm diện tích và dành diện tích đó để đặt bàn ăn, không gian chung đi lại thoải mái thì KTS lựa chọn thiết kế tủ bếp, tủ lạnh, và tủ rượu âm tường.

Bàn ăn bố trí phù hợp với gia đình nhỏ và cả khi có khách tới chơi nhà. Đồ nội thất bếp, tủ, bàn ghế đều được sử dụng chất liệu gỗ, mang đến sự thoải mái, thân thiện cho không gian.
Điểm nhấn tô điểm cho bức tường đơn điệu là tranh decor trang trí bên cạnh tủ rượu độc đáo.
Thiết kế nội thất phòng ngủ Master nhà phố 5 tầng
Phòng ngủ Master dành cho bố mẹ, ngoài các đồ nội thất như: bàn trang điểm, giường, tủ, tab đầu giường thì phòng ngủ còn được thiết kế thêm một không gian phòng thay đồ. Cùng đi vào chi tiết không gian phòng ngủ nhà chị Vân được ATZ thiết kế độc đáo như thế nào nhé!

Không gian phòng ngủ master rộng rãi, thoáng mát kết hợp sử dụng cửa kính và rèm lại càng tăng thêm chiều sâu, rộng của công gian.
Decor nội thất đơn giản, thân thiện bằng các đồ nội thất được làm từ gỗ.

Tone màu trắng làm chủ đạo của căn nhà nhưng với phòng ngủ, màu gỗ lại chiếm ưu thế hơn bởi hầu hết các đồ nội thất đều sử dụng gỗ.


Sự khác biệt của phòng ngủ này so với các phòng khác đó chính là thiết kế phòng thay đồ. Phòng thay đồ không sử dụng vách ngăn là tường, thay vào đó là sử dụng vách ngăn tủ gỗ, vừa làm tủ đựng đồ lại tạo vách ngăn riêng tư. Đồng thời tiết kiệm chi phí và cả diện tích không gian.

Phòng thay đồ với vách ngăn độc đáo
Một phòng không thể thiếu đó chính là nhà tắm, nhà vệ sinh với combe nội thất đầy đủ: bồn tắm, bồn rửa mặt, gương decor,…

Bồn tắm đặt ở góc để tiết kiệm diện tích hơn, giúp tạo khoảng không gian đi lại được rộng hơn, thoải mái hơn. Màu xám trầm là màu chủ đạo của không gian phòng tắm, tạo sự nhẹ nhàng, cảm giác thoải mái để có thể “chill” sau một ngày dài mệt mỏi.

Gương decor thiết kế khổ lớn để “đánh lừa” thị giác, mang đến cảm giác không gian rộng và thoáng đoãng. Một không gian nhà tắm được gia chủ rất yêu thích bởi sự tinh tế và hiện đại.
Thiết kế phòng ngủ nhỏ 1 cho con
Tầng 4 là phòng ngủ của con với combo nội thất đầy đủ: bàn học, giường ngủ, kệ tủ, điều hoà,…

Vẫn là tông màu sáng và đồ nội thất gỗ thân thiện, thêm vào đó là sự tô điểm màu hồng của bộ ga nệm. Decor phòng ngủ cho bé khá đơn giản, nhưng ngộ ngĩnh, đáng yêu bởi những hình thù con vật hoạt hình xinh xắn.
Tab đầu giường giúp bé có thể để sách, đồ chơi và đồng hồ báo thức tiện lợi
KTS sử dụng thiết kế tủ đồ âm tường để tối ưu hoá không gian nhất có thể, để cho bé có nhiều không gian vui đùa hơn.
Cửa sổ thông thoáng, độc đáo, mang cảm giác thoải mái cho bé
Thiết kế phòng ngủ nhỏ thứ 2

Cũng như decor ở phòng ngủ nhỏ, phòng ngủ lớn không có nhiều khác biệt, chỉ khác biệt màu sắc của ga nệm và tường trang trí.

Không gian phòng ngủ tinh tế cùng đồ nội thất độc đáo, sáng tạo
Cửa sổ đôi bằng kính giúp đón nhận ánh sáng bên ngoài dễ dàng hơn.
Lý do bạn nên chọn ATZ LUXURY là đơn vị thiết kế thi công nội thất cho không gian nhà mình?
ATZ LUXURY – đơn vị chuyên thiết kế thi công nội thất với các phong cách khác nhau từ cổ điển, tân cổ điển tới hiện đại hoạt động với tiêu chí “Sự hài lòng của khách hàng là động lực phát triển của công ty”. ATZ với đội ngũ KTS, nhân viên, chuyên viên tư vấn nhiều năm kinh nghiệm thực chiến, chắc chắn sẽ là điểm đến tin tưởng cho bạn.
Ngoài ra, ATZ sẽ khiến bạn hài lòng bởi phong cách và quy trình làm việc bài bản khác hẳn với những đơn vị thi công khác. ATZ luôn đảm bảo thực hiện theo đúng tiến độ công trình theo như kế hoạch nhằm giúp chủ đầu tư nắm bắt được thời gian và thực hiện các kế hoạch cho riêng mình.
Vậy nên, nếu bạn đang tìm kiếm một đơn vị thiết kế không gian sống cho mình theo một cách tối ưu và lý tưởng nhất đừng quên liên hệ với ATZ theo địa chỉ bên dưới nhé.
Hy vọng sau mẫu thiết kế nội thất nhà phố 5 tầng sàn 110m2 ở trên nhà chị Vân mà ATZ giới thiệu bên trên một phần nào đó sẽ giúp bạn có thêm ý tưởng mới để tân trang tổ ấm của gia đình mình.
Xem thêm:
Thiết kế nội thất nhà phố 5 tầng diện tích sàn 60m2 cho chú Hùng
Thiết kế nội thất nhà phố 5 tầng 25m2 đẳng cấp, thời thượng
Thảo Phương – thietkenoithatatz.com