Tin tức biệt thự
Tổng hợp các kiến thức, thông tin, cập nhất các xu hướng, phong cách thiết kế nội thất biệt thự
30+ mẫu thiết kế phòng khách biệt thự tân cổ điển đẹp, sang trọng
Phòng khách biệt thự tân cổ điển là sự lựa chọn tuyệt vời cho những ai yêu thích không gian
- 08/04/2022
25+ ý tưởng thiết kế nội thất phòng ngủ biệt thự đẹp và sang trọng
Phòng ngủ biệt thự mặc dù là không gian riêng tư nhưng cũng là không gian được các gia đình
- 30/03/2022
25+ Mẫu thiết kế phòng bếp biệt thự đẳng cấp, sang trọng và tiện nghi
Bạn đang tìm kiếm ý tưởng thiết kế phòng bếp biệt thự cao cấp của gia đình, bạn phân vân
- 28/03/2022
[Báo giá] Thiết kế thi công nội thất biệt thự trọn gói Hà Nội – TPHCM
Đầu tư vào không gian nội thất biệt thự là một quyết định quan trọng, đòi hỏi sự cân nhắc
- 14/03/2022
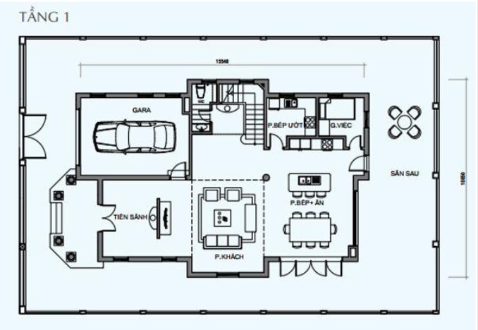
Bản vẽ thiết kế nội thất biệt thự là gì? Cách đọc và hiểu bản vẽ chuẩn
Bản vẽ thiết kế nội thất biệt thự là yếu tố chắc chắn không thể thiếu trước khi tiến hành
- 10/03/2022
Bản vẽ thiết kế nội thất biệt thự Vinhomes The Harmony các phân khu
Bạn đang tìm kiếm bản vẽ thiết kế nội thất biệt thự khu Vinhomes The Harmony? vậy việc bạn cần
- 04/03/2022
5 Phong cách thiết kế nội thất biệt thự song lập vạn người mê
Nếu bạn đang sở hữu một căn biệt thự song lập và đang tìm kiếm phong cách thiết kế nội
- 20/01/2022
Có nên mua biệt thự song lập Waterpoint không?
Hỏi: Xin chào ATZ LUXURY! Sau 10 năm lập nghiệp vợ chồng tôi đã dành dụm được khoản tiền kha
- 14/01/2022
Biệt thự song lập là gì? Những kiến thức cần nắm được trước khi quyết định mua
Trong số những bất động sản cao cấp, biệt thự song lập được biết đến với cương vị là phân
- 04/01/2022