Thiết kế căn hộ Vinhomes Smart City 43m2 cho anh Nhật
Dự án thiết kế căn hộ Vinhomes Smart City cho anh Nhật tại căn S301 được ATZ LUXURY được triển khai và đã hoàn thiện xong trong ngày 6/2/2021. Hãy cùng ATZ LUXURY tham khảo mẫu thiết kế căn hộ Vinhomes Smart City 43m2 siêu ấn tượng này nhé.
Nội Dung Bài Viết
- 1 Khám phá chi tiết về dự án thiết kế căn hộ Vinhomes Smart City 43m2
- 1.1 Ý tưởng thiết kế nội thất phòng khách chung cư nhà anh Nhật
- 1.2 Khám phá ý tưởng thiết kế phòng làm việc trong căn hộ chung cư nhà anh Nhật
- 1.3 Ý tưởng thiết kế phòng ngủ trong căn hộ nhà anh Nhật
- 1.4 Thiết kế nhà vệ sinh
- 1.5 Thiết kế ban công cho nhà anh Nhật
- 1.6 Anh Nhật đánh giá nhận xét về dịch vụ thiết kế thi công nội thất căn hộ của ATZ LUXURY
Khám phá chi tiết về dự án thiết kế căn hộ Vinhomes Smart City 43m2
Loại dự án: Thiết kế thi công căn hộ chung cư
Diện tích: 43m2 Vị trí căn hộ S301
Chủ đầu tư: Anh Nhật
Phong cách: Nhật Bản
Đồ nội thất: Sản xuất trực tiếp tại xưởng nội thất ATZ
Hạng mục: Thiết kế, thi công nội thất
KTS. Nguyễn Phương Anh – thietkenoithatatz.com
Giám sát công trình: Nguyễn Đình Chiến
Chỉ đạo sản xuất: Giám đốc xưởng Chung Tử Đơn
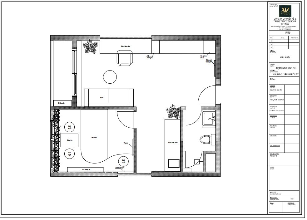
Mặt bằng căn hộ chung cư S301 nhà anh Nhật

Ý tưởng thiết kế nội thất phòng khách chung cư nhà anh Nhật
KTS. Phương Anh sau khi trao đổi với yêu cầu, mong muốn của anh Nhật đã nắm được mong muốn và ngân sách đầu tư dự tính của nhà anh Nhật đã lên ý tưởng thiết kế nội thất phòng khách chung cư cho nhà anh Nhật với tone màu chủ đạo là gỗ kết hợp trắng, phòng khách được thiết kế đẹp đơn giản tiết kiệm chi phí mà mang đậm những nét tinh hoa của văn hóa Nhật Bản, từ việc lựa chọn và sử dụng tranh hoa đào dưới mảng tường ngay sau bộ sofa, chiến đèn thả ngay vị trí trung tâm phong khách toát lên nét văn hóa đậm chất Nhật Bản.
Hình ảnh mẫu thiết kế nội thất phòng khách chung cư nhà anh Nhật




Khám phá ý tưởng thiết kế phòng làm việc trong căn hộ chung cư nhà anh Nhật
Phòng làm việc trong căn hộ 43m2 tại Vinsmart City của nhà anh Nhật cũng được khá chú trọng, phòng làm việc thiết kế thoải mái rộng rãi với những điểm nhấn, mang yếu tố thiên nhiên giúp khơi gợi nguồn cảm hứng làm việc cho anh rất tốt, mệnh của anh là mệnh hỏa rất hợp với màu xanh của thiên nhiên tượng trưng cho sự tăng trưởng hài hòa, tươi mát, mang đến nguôn cảm hứng làm việc bất tận cho gia chủ.



Ý tưởng thiết kế phòng ngủ trong căn hộ nhà anh Nhật
Phòng ngủ căn hộ nhà anh được thiết kế đơn giản, không chỉ là nơi anh có thể thư giãn nghỉ ngơi sau những giờ làm việc căng thẳng mệt mỏi, mà chính tại phòng ngủ anh cũng có 1 chiếc bàn trà nhỏ kết hợp với những chiếc đệm ghế mây che đan ngôi thư thái uống trà với đối tác ngay trong chính căn phòng rất tiện lợi và thoải mái.
Hình ảnh mẫu thiết kế phòng ngủ trong căn hộ nhà anh Nhật



Thiết kế nhà vệ sinh


Thiết kế ban công cho nhà anh Nhật


Anh Nhật đánh giá nhận xét về dịch vụ thiết kế thi công nội thất căn hộ của ATZ LUXURY
Ngay sau khi công trình được hoàn thiện xong cả về thiết kế và thi công an Nhật có chia sẻ với chúng tôi như sau: Thật sự tôi rất thích, rất ưng về tác phong làm việc cũng như trách nhiệm của các bạn, tinh thần trách nhiệm rất cao, sản phẩm chất lượng, 99% hình ảnh sau thi công giống thiết kế, quả thật những gợi ý lựa chọn từ google là rất chuẩn, tôi biết ATZ LUXURY qua đọc tài liệu dự án các căn các bạn làm trên google.
Trên đây là toàn bộ những thông tin cơ bản và chi tiết nhất về dự án thiết kế và thi công nội thất căn hộ chung cư Vinhomes Smart city căn S301 mà ATZ LUXURY đã triển khai hoàn thiện cả về thiết kế lẫn thi công bạn có thể tham khảo, mọi thắc mắc xin vui lòng liên hệ với chúng tôi theo số Hotline để được giải đáp mọi khúc mắc.
Tìm hiểu thêm
- Thiết kế nội thất căn hộ chung cư Vinhomes Smart City 43m2 1PN
- Thiết kế căn hộ Vinhomes Smart City 55m2 cho chị Tiến
Biên tập: Nguyễn Thu ( thietkenoithatatz.com)